Industrial Land/Build-to-Suit for Rent, 29'700m2, in Matamorros MEX0575
About the asset
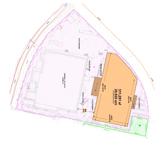
Available Land for a BTS facility of over 300,000 Sqft strategically located in Matamoros, Tamaulipas.More Details
| Square Meter | 29'729 m2 |
|---|---|
| Buy or rent | Rent |
| Asking Price | $40-90 USD per m2 (Mkt.Price) |
| Land Size Total | 29'729 m2 |
| Electricity Extra Power | On Demand |
| Electricity Note | Mid tension |
| Natural Gas | available |
| Max Height | 0 m |
| Divisible | On Demand |
| Expansion possible | On Demand |
| No of Office Rooms | 0 |
| Office Area | |
| No of Parking Slots | 0 |
| No of Docks | 0 |
| No of Ramps | 0 |
| Water available | Yes |
| Water Note | |
| Docks Levelers |
..
| Video Monitoring Inside Nave | On Demand |
|---|---|
| Security Fence | Yes |
| Video Monitoring Park | On Demand |
| Security | |
| Sanitary rooms | 0 |
| Social Rooms | 0 |
| Fire Protection | Yes |
| Building Type | |
| Quality Walls | |
| Quality Roof | |
| Quality Floor | |
| Asset Updated | 13/02/2025 |
| Distance to Airport | 0 |
| Distance to US Border | 15 |
| Air Condition | On Demand |
| Ventilation System | |
| Certifications | |
| Permission Government | Yes |
Note:Those info are without guarantee and can vary.
Facts About Tamaulipas
3.6 M Population
1.6 M Active working population
15,000 Graduates per year
$700 USD Average Salary
39 Industrial Parks400km Distance to US-Border
Manufacturing in Mexico City
The City
Mexico City, the capital and largest city of Mexico, is one of the most populous urban areas in the world, with an estimated population exceeding 20 million people in its metropolitan area.
Strategic Location
Mexico City with its large population a very attractive place to set up its distribution or logistic centrum. The state is excellent connected with international airports all over the world.
Industries
The economic sectors that concentrated the most economic units in Ciudad de México Retail Trade, other Services Temporary Accommodation and Food Preparation and Drinks. There are also various pharmaceutical companies based in Mexico City.
Workforce & Universities
The fields of study with the highest number of graduates in the 2020-2021 school period in Ciudad de México were medical sciences (12.5%, 7,445 graduates), mechanical, electronic, electronic, chemistry and related professions engineering (11.4%, 6,792 graduates), and social sciences and behavioral studies (10.9%, 6,477 graduates).



