Industrial Land/Build-to-Suit for Sale, 10'000m2-80'000m2 in Pedro Escobedo MEX1411
More Details
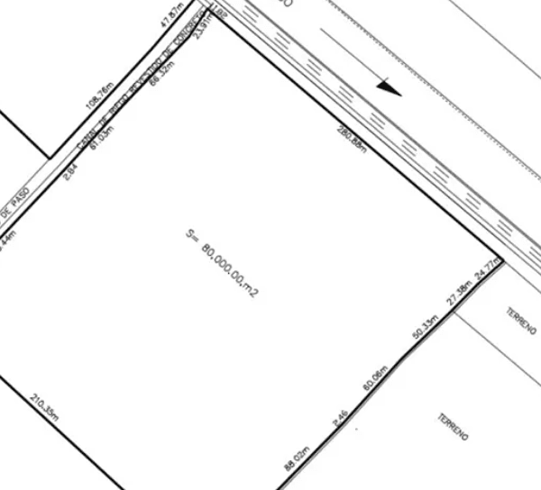
| Square Meter | 80'000 m2 |
|---|---|
| Buy or rent | Buy |
| Asking Price | $90-200 USD per m2 (Mkt.Price) |
| Land Size Total | 80'000 m2 |
| Electricity Extra Power | On Demand |
| Max Height | 0 m |
| Divisible | Yes |
| Expansion possible | On Demand |
| No of Office Rooms | 0 |
| Office Area | |
| No of Parking Slots | 0 |
| No of Docks | 0 |
| No of Ramps | 0 |
| Water available | Yes |
| Water Note | |
| Docks Levelers |
..
| Video Monitoring Inside Nave | On Demand |
|---|---|
| Security Fence | No |
| Video Monitoring Park | No |
| Security | |
| Sanitary rooms | 0 |
| Social Rooms | 0 |
| Fire Protection | No |
| Building Type | |
| Quality Walls | |
| Quality Roof | |
| Quality Floor | |
| Asset Updated | 12/09/2025 |
| Distance to Airport | 0 |
| Distance to US Border | 950 |
| Air Condition | No |
| Ventilation System | |
| Certifications | |
| Permission Government | Yes |
Note:Those info are without guarantee and can vary.
Facts About Querétaro
2.4 Million habitants
1.11 M Active working population
62,000 Graduates per year
$329 USD Average monthly salary
88 Industrial Parks
940 km to the US Border
Manufacturing in Querétaro
The City
Queretaro is only 2 hours away from Mexico City and belongs to the most secure and competitive states in Mexico. They have opened the first Aeronautics University and have since 2006 over 25k graduates in that field. In addition, most data centers are in Queretaro housed. Queretaro has achieved a new record in FDI with 200 MDD USD.
Strategic Location
Located just 120 miles north of Mexico City, it has excellent national and international connectivity. Within 350km, there’re are 45m habitants, thus Queretaro is a very attractive workplace. Thanks to the central location and its modern highways and railways, it ensures a smooth transportation to all states of Mexico.
Industries
There are 8 industry clusters in Queretaro, with its main focus on automotive and aerospace. In the automotive sector, here are over 7 OEM’s, 112 Tier 1, +200 Tier 2 companies active. The aerospace industry has 2 OEM’s and 26 suppliers in Tier 1&2 as well as over 10k employees. In total, Queretaro has over 50 Industrial Parks.
Workforce & Universities
Queretaro has over 3k graduated technical engineers, 28% of all students are in the engineering. The government has various alliances with renowned companies such as Siemens or IBM in the industry 4.0 in which students take advantage from the practical work. Beside that, Queretaro has over 56 Research and Development Centers.


