Industrial Land/Build-to-Suit for Sale, 1'500m2-20'400m2, in Morelia MEX0214
About the asset
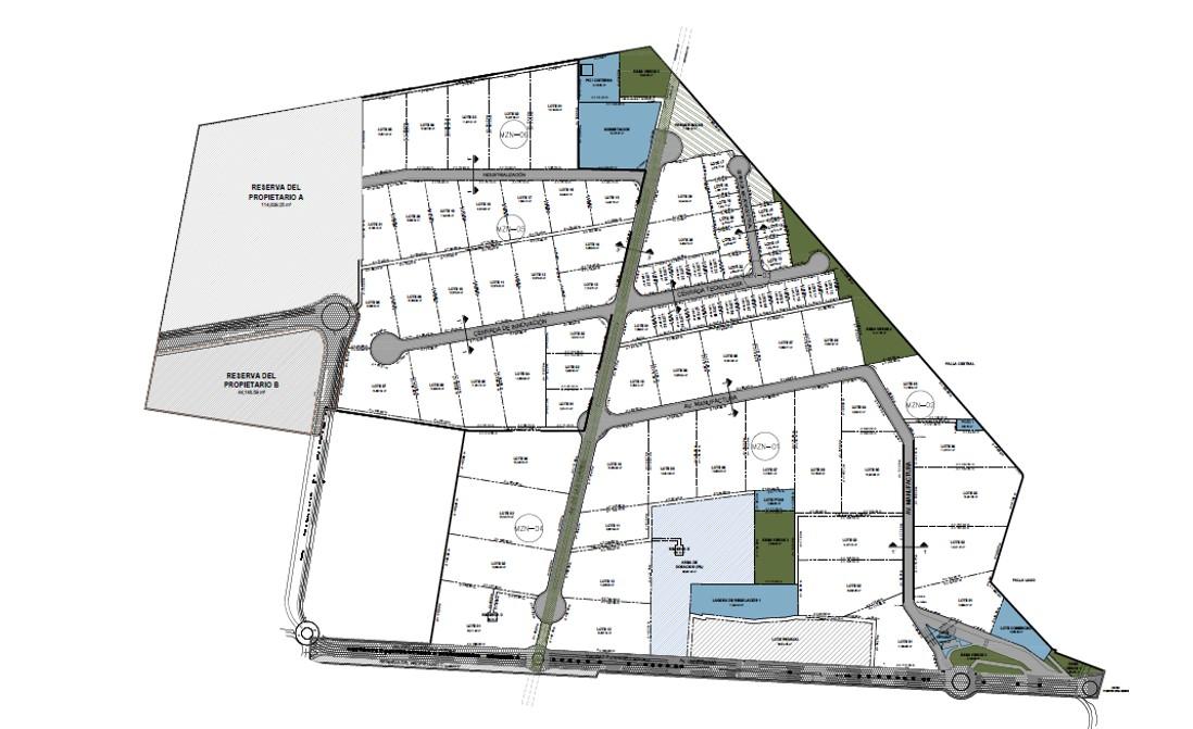
Encompassing 145 hectares, this industrial park is a strategic development hub with exceptional features that set it apart in the region. Its location on the Morelia-Salamanca Highway, in Tarímbaro, Michoacán, Its just a few kilometers away from downtown Morelia and 13 kilometers from the Morelia International Airport, ensuring unparalleled connectivity.Key Features:- AAA-Class Rating: This industrial park takes pride in its AAA-Class rating, meaning its adherence to the highest standards of des...Read MoreMore Details
| Square Meter | 20'400 m2 |
|---|---|
| Buy or rent | Buy |
| Asking Price | Price on Request |
| Construction Year | 2023 |
| Ready to operate | The land is available at this moment ,Since we receive the formal request to build the BTS we take about 6 months |
| Electricity Extra Power | On Demand |
| Electricity Note | Green energy geothermal medium tension 13.2K. |
| Lighting Type | to suit |
| Max Height | 0 m |
| Divisible | Yes |
| Expansion possible | On Demand |
| No of Office Rooms | |
| Office Area | |
| No of Parking Slots | |
| No of Docks | |
| No of Ramps | |
| Water available | Yes |
| Water Note | |
| Docks Levelers |
..
| Video Monitoring Inside Nave | Yes |
|---|---|
| Security Fence | Yes |
| Video Monitoring Park | Yes |
| Security | 24/7 security entrance |
| Sanitary rooms | |
| Social Rooms | |
| Fire Protection | Yes |
| Building Type | Triple AAA |
| Quality Walls | |
| Quality Roof | |
| Quality Floor | |
| Asset Updated | 19/02/2025 |
| Distance to Airport | |
| Distance to US Border | 1000 |
| Air Condition | On Demand |
| Ventilation System | |
| Certifications | |
| Permission Government | Yes |
Note:Those info are without guarantee and can vary.
Facts About Michoacan
4.7 Million Habitants
2.2 M Active working population
1.100km Distance to US-Border
$520 USD Average Monthly salary
Manufacturing in Michoacan
The City
Michoacán, located in western Mexico, is a state known for its rich cultural heritage, diverse landscapes, and vibrant traditions. With a total of 113 municipalities, Michoacán is home to approximately 4.7 million inhabitants. Its capital city, Morelia, is renowned for its colonial architecture and UNESCO World Heritage Sites, while the state's natural attractions, including the monarch butterfly biosphere reserve and the beautiful Lake Patzcuaro, draw visitors from around the world.
Strategic Location
Michoacán's strategic location in western Mexico provides it with access to key transportation routes and trade corridors, positioning it as an important gateway between central and western regions of the country. Bordering the Pacific Ocean to the southwest, Michoacán also offers opportunities for maritime trade and coastal development.
Industries
Michoacán's economy is diverse, with key industries contributing to its growth and development. Agriculture plays a significant role, with the state being one of Mexico's leading producers of avocados, limes, and berries. Additionally, Michoacán is known for its vibrant handicrafts industry, producing traditional items such as pottery, textiles, and wood carvings.
Workforce & Universities
Michoacán benefits from a skilled workforce supported by a network of universities and educational institutions. These institutions, such as the Universidad Michoacana de San Nicolás de Hidalgo (UMSNH) and the Instituto Tecnológico de Morelia (ITM), provide diverse educational opportunities in fields ranging from engineering and agriculture to arts and humanities.














