Industrial Land/Build-to-Suit for Sale, 4'900m2, in Morelos MEX0930
More Details
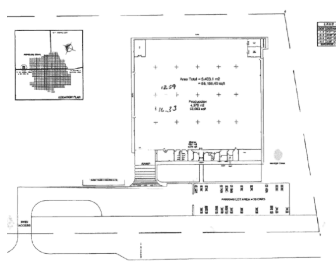
| Square Meter | 4'919 m2 |
|---|---|
| Buy or rent | Buy |
| Asking Price | Price on request |
| Land Size Total | 24'480 m2 |
| Electricity Extra Power | On Demand |
| Electricity Note | 675 KVAs |
| Max Height | 0 m |
| Divisible | On Demand |
| Expansion possible | Yes |
| No of Office Rooms | |
| Office Area | |
| No of Parking Slots | |
| No of Docks | 3 |
| No of Ramps | |
| Water available | Yes |
| Water Note | |
| Docks Levelers |
..
| Video Monitoring Inside Nave | On Demand |
|---|---|
| Security Fence | Yes |
| Video Monitoring Park | On Demand |
| Security | |
| Sanitary rooms | |
| Social Rooms | |
| Fire Protection | Yes |
| Building Type | |
| Quality Walls | |
| Quality Roof | |
| Quality Floor | |
| Asset Updated | 07/11/2024 |
| Distance to Airport | |
| Distance to US Border | 50 |
| Air Condition | On Demand |
| Ventilation System | |
| Certifications | |
| Permission Government | Yes |
Note:Those info are without guarantee and can vary.
Facts About Coahuila
3.7 M Population
1.48 M Active working population
23,948 Graduates per school cycle
$550 USD Average monthly salary
47 Industrial Parks
512 km of border with the US
Manufacturing in Jalisco
The City
Jalisco is located in the western region of the country and divided into 125 municipalities. It is the third most populous state, with more than 8.6M inhabitants in 2020.
Strategic Location
Guadalajara has the 2nd largest international airpor and is only 3 hours away to the port of Manzanillo, where there are direct sea freight to Asiaby car from the United States border away, over 20 international flights to Europe, North and South Europe as well as over 20 domestic flights. Over 4200+ international companies have been settled down in Monterrey.
Industries
There are 19 industry clusters whereas the IT, Automotive and Food industries belong to the largest ones. beside Automotive and Electronic, there exist also many IT & Software companies In total, Jalisco has has more than 81 industrial parks.
Workforce & Universities
The government makes a lot of investment into Innovation Science and Technology, there are several thousands graduated technicians yearly. Guadalajara has 13 well-known universities such as Tec de Monterrey, ITESO or Ipade.




