Industrial Land/Build-to-Suit for Sale, 8'000m2-210'000m2, in Torreon MEX0626
Industrial Space
210'000
More Details
| Square Meter | 210'000 m2 |
|---|---|
| Buy or rent | Buy |
| Asking Price | $40-95 USD per m2 (Mkt.Price) |
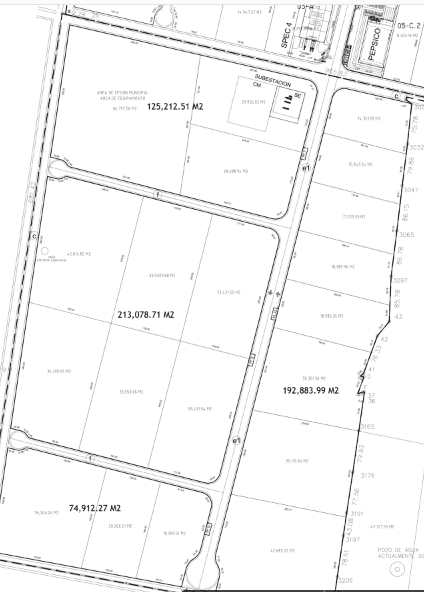
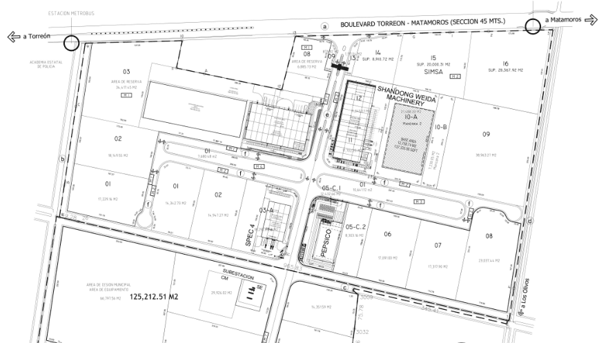
| Land Size Total | 210'000 m2 |
| Electricity Extra Power | On Demand |
| Max Height | 0 m |
| Divisible | Yes |
| Expansion possible | On Demand |
| No of Office Rooms | 0 |
| Office Area | |
| No of Parking Slots | 0 |
| No of Docks | 0 |
| No of Ramps | 0 |
| Water available | Yes |
| Water Note | |
| Docks Levelers |
..
| Video Monitoring Inside Nave | On Demand |
|---|---|
| Security Fence | Yes |
| Video Monitoring Park | On Demand |
| Security | |
| Sanitary rooms | 0 |
| Social Rooms | 0 |
| Fire Protection | No |
| Building Type | |
| Quality Walls | |
| Quality Roof | |
| Quality Floor | |
| Asset Updated | 06/06/2024 |
| Distance to Airport | 0 |
| Distance to US Border | 550 |
| Air Condition | On Demand |
| Ventilation System | |
| Certifications | |
| Permission Government | Yes |
Note:Those info are without guarantee and can vary.
Facts About Coahuila
3.7 M Population
1.48 M Active working population
23,948 Graduates per school cycle
$550 USD Average monthly salary
47 Industrial Parks
512 km of border with the US
Manufacturing in Coahuila
The City
Coahuila, the third-largest state in Mexico spanning 151,594.8 square kilometer.
Strategic Location
With a population of 3,146,771, Coahuila’s strategic location, enhanced by Highway 57 and two border crossing points to the US, facilitates robust trade
Industries
Coahuila is the second-largest exporter and the foremost in transportation equipment goods.
Workforce & Universities
The state boasts 131 higher education institutions, 48 of which offer graduate programs, cementing its status as an educational destination.


