Industrial Space for Rent, 6'200m2-10'600m2,Multiple Buildings Available , in Chihuahua MEX0392
More Details
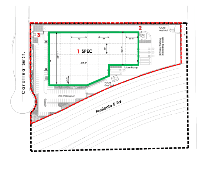
| Square Meter | 6'203 m2 |
|---|---|
| Buy or rent | Rent |
| Asking Price | $6.50-7.50 USD per m2 (Mkt.Price) |
| Land Size Total | 16'673 m2 |
| Bay Size | 50 'x 54'-2" / 50' x 77'-1" |
| Ready to operate | Immediately |
| Electricity Extra Power | On Demand |
| Electricity Note | 1@ 500 KVAS |
| Lighting Type | Led 40 fc |
| Min Height | 9.75 m |
| Max Height | 9.75 m |
| Divisible | On Demand |
| Expansion possible | On Demand |
| No of Office Rooms | |
| Office Area | |
| No of Parking Slots | 119 |
| No of Docks | 4 |
| No of Ramps | 1 |
| Water available | Yes |
| Water Note | As required |
| Docks Levelers |
..
| Video Monitoring Inside Nave | On Demand |
|---|---|
| Security Fence | Yes |
| Video Monitoring Park | On Demand |
| Security | |
| Sanitary rooms | |
| Social Rooms | |
| Fire Protection | Yes |
| Building Type | Class A |
| Quality Walls | Precast Wall |
| Quality Roof | KR-18 gal. ga22 |
| Quality Floor | |
| Asset Updated | 21/11/2025 |
| Distance to Airport | |
| Distance to US Border | 250 |
| Air Condition | On Demand |
| Ventilation System | |
| Certifications | |
| Permission Government | Yes |
Note:Those info are without guarantee and can vary.
Facts About Chihuahua
3.86 M Population
2.4 M Active working population
6,600 graduated engineers per year
77 Industrial Parks
350 km Distance to he US-Border
Manufacturing in Chihuahua
The City
Thanks to its proximity to the USA and various industrial parks in Juarez and Chihuahua as well as its cheap labour force compared to the USA, it is very attractive to produce in the state Chihuahua.
Strategic Location
The largest capital of Chihuahua Ciudad Juarez is directly located at the border to the United States and is the 2nd largest commercial border crossing with modern highways Over 4200+ international companies have been settled down in Monterrey.
Industries
There are 9 industry clusters whereas the main focus are automotive, Electronic and Medical Device. Well-known companies such as Continental, Electrolux, Johnson & Johnson, or GE have their productions there located. The state Chihuahua has 15 industrial parks.
Workforce & Universities
Yearly over 20k graduates and technicians has Chihuahua. There are 38+ universities and 4 Research & Development Centers.





