Industrial Space for Sale, 10'000m2-27'300m2, in Apodaca, Monterrey MEX0931
About the asset
Under constructionMore Details
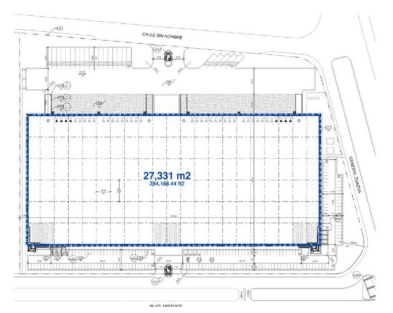
| Square Meter | 27'331 m2 |
|---|---|
| Buy or rent | Buy |
| Asking Price | Asking Price $25.5 Mio. USD |
| Land Size Total | 50'870 m2 |
| Ready to operate | 1Q-2025 |
| Electricity Extra Power | On Demand |
| Max Height | 0 m |
| Divisible | On Demand |
| Expansion possible | Yes |
| No of Office Rooms | 0 |
| Office Area | |
| No of Parking Slots | 0 |
| No of Docks | 0 |
| No of Ramps | 0 |
| Water available | Yes |
| Water Note | |
| Docks Levelers |
..
| Video Monitoring Inside Nave | On Demand |
|---|---|
| Security Fence | Yes |
| Video Monitoring Park | Yes |
| Security | |
| Sanitary rooms | 0 |
| Social Rooms | 0 |
| Fire Protection | Yes |
| Building Type | |
| Quality Walls | |
| Quality Roof | |
| Quality Floor | |
| Asset Updated | 07/11/2024 |
| Distance to Airport | 0 |
| Distance to US Border | 220 |
| Air Condition | On Demand |
| Ventilation System | |
| Certifications | |
| Permission Government | Yes |
Note:Those info are without guarantee and can vary.
Facts About Nuevo León
5.8 Million habitants
2.9 M Active working population
60,000 Graduates per year
$400 USD Average monthly salary
213 Industrial Parks220km to the US Border
Manufacturing in Nuevo León
The City
Monterrey has over 6 Million habitants and belongs to the most secure cities in Monterrey. In the last two years, over 51% new investment have been done, out of that 49% of expansion projects.
Strategic Location
Monterrey is only 3 hours by car from the United States border away, over 20 international flights to Europe, North and South Europe as well as over 20 domestic flights.
Industries
Nuevo Leon has 14 clusters, with its main sectors in automotive, aerospace, home appliances, and information technology.
Workforce & Universities
Nuevo Leon have yearly over 36’000 graduated engineers & technicians. Thanks to the close distance to the US-Border, many people are bilingual. The most prestigious universities are Technology de Monterrey, UANL, UDEM and U-ERRE.











