Industrial Space for Sale, 55'700m2, in San Luis, Arizona (USA) MEX0862
About the asset
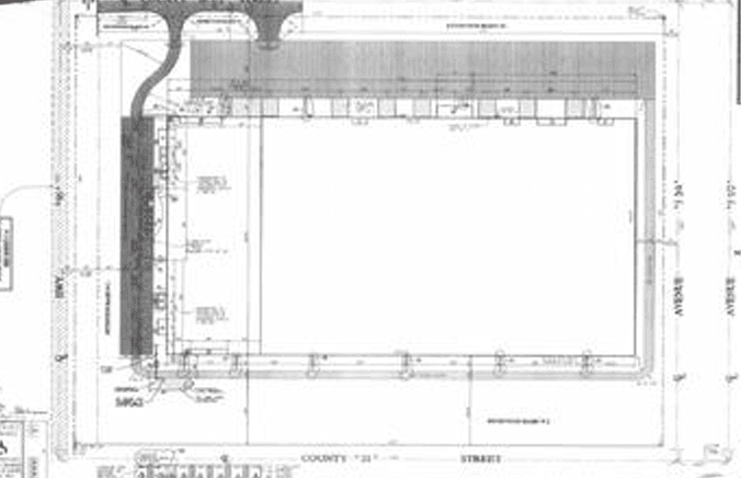
high-quality Butler Frame steel construction built in 1998 on 35 acres of fenced flat land as a 610.412 SF factory/Warehouse with 20–34-foot clearance and 4,000 amps power. It is located in low-cost AZ at the AZ-CA-Mexico corner only three (3) miles from the Mexico port of entry border crossing. It is ideally placed for distribution to southern CA. The property is suitable for either an owner or an investor.More Details
| Square Meter | 55'741 m2 |
|---|---|
| Buy or rent | Buy |
| Asking Price | Price on request |
| Land Size Total | 141'600 m2 |
| Construction Year | 1998 |
| Electricity Extra Power | On Demand |
| Min Height | 6 m |
| Max Height | 10.3 m |
| Divisible | No |
| Expansion possible | Yes |
| No of Office Rooms | |
| Office Area | |
| No of Parking Slots | |
| No of Docks | 27 |
| No of Ramps | 3 |
| Water available | Yes |
| Water Note | |
| Docks Levelers |
..
| Video Monitoring Inside Nave | On Demand |
|---|---|
| Security Fence | Yes |
| Video Monitoring Park | On Demand |
| Security | |
| Sanitary rooms | |
| Social Rooms | |
| Fire Protection | Yes |
| Building Type | Class A |
| Quality Walls | steel construction |
| Quality Roof | |
| Quality Floor | |
| Asset Updated | 25/09/2024 |
| Distance to Airport | |
| Distance to US Border | 10 |
| Air Condition | On Demand |
| Ventilation System | |
| Certifications | |
| Permission Government | Yes |
Note:Those info are without guarantee and can vary.
Facts About USA
coming soon
coming soon
coming soon
coming soon
coming soon
Manufacturing in Nuevo León
The City
Monterrey has over 6 Million habitants and belongs to the most secure cities in Monterrey. In the last two years, over 51% new investment have been done, out of that 49% of expansion projects.
Strategic Location
Monterrey is only 3 hours by car from the United States border away, over 20 international flights to Europe, North and South Europe as well as over 20 domestic flights.
Industries
Nuevo Leon has 14 clusters, with its main sectors in automotive, aerospace, home appliances, and information technology.
Workforce & Universities
Nuevo Leon have yearly over 36’000 graduated engineers & technicians. Thanks to the close distance to the US-Border, many people are bilingual. The most prestigious universities are Technology de Monterrey, UANL, UDEM and U-ERRE.



