Shelter Service for Rent, 4'000m2-16'100m2, Multiple Modules Available, in Hermosillo, Sonora MEX1353
About the asset
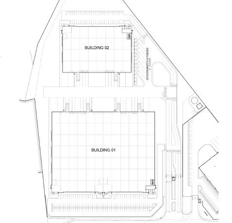
INDUSTRIAL PARK SERVICES Services • City water 2" incoming domestic piping available • Sanitary drainage 6" discharged piping available • Electrical power. KVA's upon demand by the tenant • Telephone services; available at the building boundary • Street lighting • Public transportation stops Security Post and Gate • Vehicular and pedestrian access shared with different tenants • Metallic structure, metal sheet roof, flattened block walls, finish concrete floor, exterior walls painting, reinforce...Read MoreMore Details
| Square Meter | 4'000 m2 |
|---|---|
| Buy or rent | Rent |
| Asking Price | Price on request |
| Land Size Total | 76'200 m2 |
| Ready to operate | immediately |
| Electricity Extra Power | On Demand |
| Electricity Note | 150 kva |
| Min Height | 9 m |
| Max Height | 0 m |
| Divisible | Yes |
| Expansion possible | Yes |
| No of Office Rooms | 1 |
| Office Area | • 100.00 sq m (1,076.40 sq. ft.) / HVAC Ambient temperature 77 ± 3F |
| No of Parking Slots | 69 |
| No of Docks | 4 |
| No of Ramps | 2 |
| Water available | Yes |
| Water Note | Water storage tank bolted steel awwa d103-97, 100 mph wind load, seismic zone 4 |
| Docks Levelers |
..
| Video Monitoring Inside Nave | On Demand |
|---|---|
| Security Fence | Yes |
| Video Monitoring Park | Yes |
| Security | 24/7 security |
| Sanitary rooms | |
| Social Rooms | |
| Fire Protection | Yes |
| Building Type | Class A |
| Quality Walls | Tilt Up |
| Quality Roof | KR-18 standing seam metal insulation R-19 |
| Quality Floor | 6" Reinforced Concrete Slab |
| Asset Updated | 11/08/2025 |
| Distance to Airport | |
| Distance to US Border | 300 |
| Air Condition | On Demand |
| Ventilation System | |
| Certifications | |
| Permission Government | Yes |
Note:Those info are without guarantee and can vary.
Facts About Sonora
3 Million habitants
1.46 M Active working population
107,746 undergraduate engineers enrolled
$453 USD Average monthly salary
25 Industrial Parks280km to the US Border
Manufacturing in Sonora
The City
The population of Sonora are around 3 million, and about 1.5 million people are economically active. Sonora is the second largest aerospace cluster in the country. There are around 70 companies in this industry in the state, employing over 20,000 people. Largest sectore is the automotive with 100+ companies including Ford, Benteler, or Magna.
Strategic Location
Sonora is located in the northwest of Mexico and its favorable location attracts many foreign companies. The state is bordering to United States at the north with Arizona, New Mexico, and 16 miles away from California, all through 7 customs across the border.
Industries
With 49 Industrial parks and one Science Park in Hermosillo under development, Sonora is prepared to receive investors and their companies.The strategic sectors in the entity are: automotive & electromobility, electric-electronic, mining, aerospace, renewable energies, medical devices, and agribusiness.
Workforce & Universities
Sonora has 3 research institutes and centers but is investing now in several projects in the future. Of every 100 people, 24 completed higher education, while 27 completed high school.










