Warehouse/Industrial Space for Rent 2'300m2, in El Refugio, Tijuana MEX1613
About the asset
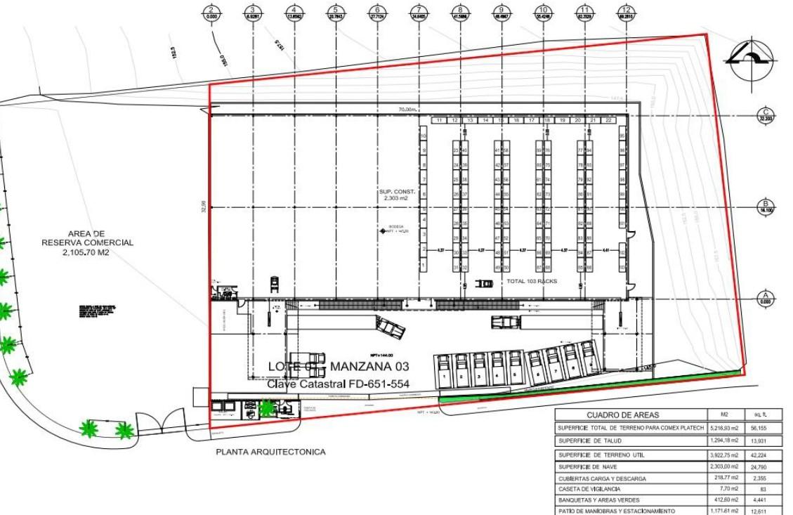
Efficient Industrial Warehouse in El Refugio, Tijuana (Baja California) Designed for streamlined logistics operations This 2,300 sqm facility offers a practical layout with dock access, supporting efficient goods movement. Its location within a key industrial area of Tijuana enhances connectivity to cross-border trade routes, making it suitable for distribution-focused users. Key Highlights: • Efficient warehouse layout • Dock access included • Industrial area location • Logistics-ready spaceMore Details
| Square Meter | 2'303 m2 |
|---|---|
| Buy or rent | Rent |
| Asking Price | USD $7.75 per m² |
| Land Size Total | 4'600 m2 |
| Ready to operate | immediately |
| Electricity Extra Power | On Demand |
| Max Height | 0 m |
| Divisible | No |
| Expansion possible | No |
| No of Office Rooms | |
| Office Area | |
| No of Parking Slots | |
| No of Docks | 3 |
| No of Ramps | |
| Water available | Yes |
| Water Note | |
| Docks Levelers |
..
| Video Monitoring Inside Nave | On Demand |
|---|---|
| Security Fence | Yes |
| Video Monitoring Park | On Demand |
| Security | |
| Sanitary rooms | |
| Social Rooms | |
| Fire Protection | No |
| Building Type | |
| Quality Walls | |
| Quality Roof | |
| Quality Floor | |
| Asset Updated | 22/02/2026 |
| Distance to Airport | |
| Distance to US Border | 20 |
| Air Condition | No |
| Ventilation System | |
| Certifications | |
| Permission Government | Yes |
Note:Those info are without guarantee and can vary.
Facts About Baja California
3.8 Million habitants
1.8 M Active working population
+127'000 students erolled in University
134 Industrial Parks20 km to the US Border
Manufacturing in Baja California
The City
Baja California, a state located in northwest Mexico, is comprised of five municipalities: Tijuana, Mexicali, Ensenada, Rosarito, and Tecate. With a total population of approximately 3.9 million inhabitants, Baja California offers diverse cultural experiences, ranging from the cosmopolitan atmosphere of Tijuana to the tranquil coastal communities of Rosarito and Ensenada.
Strategic Location
Baja California, situated in northwest Mexico, occupies a strategically significant location along the U.S.-Mexico border. This geographic position makes it a crucial gateway for trade and commerce between North America and Latin America. Its border cities, such as Tijuana and Mexicali, serve as major transportation hubs, facilitating the movement of goods, people, and capital across borders.
Industries
Baja California boasts a diverse economy driven by key industries such as manufacturing, aerospace, tourism, agriculture, and technology. With its strategic location along the U.S.-Mexico border and access to skilled labor, the state serves as a hub for manufacturing operations, particularly in aerospace and automotive sectors. Its picturesque coastline and cultural attractions attract tourists, while its fertile valleys support a thriving agricultural sector. Additionally, Baja California is emerging as a technology hub, offering opportunities for software development and IT services
Workforce & Universities
Baja California boasts a skilled and diverse workforce supported by a network of universities and educational institutions. With a focus on fields such as engineering, manufacturing, and technology, these universities provide the region with a talent pool equipped for various industries.











