Warehouse/Industrial Space for Sale, 4'300m2, in Reynosa MEX1218
About the asset
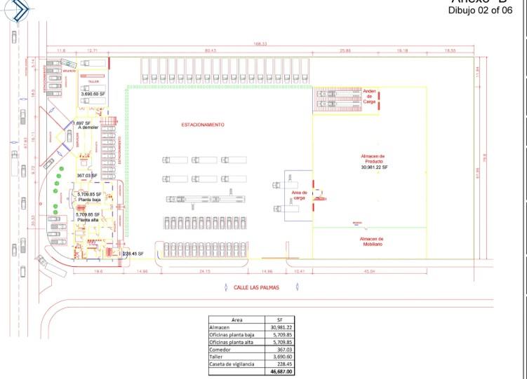
Industrial Warehouse for Sale with Light Manufacturing Capacity in Reynosa (Tamaulipas) Ownership opportunity near US border This 4,337 sqm industrial warehouse in Reynosa (Tamaulipas) supports light manufacturing and logistics operations, backed by 300 kVA power capacity. The facility features dock and ramp access along with a significant office area, enabling integrated workflows. Its location near the US border enhances trade efficiency, making it attractive for export-driven companies seek...Read MoreMore Details
| Square Meter | 4'337 m2 |
|---|---|
| Buy or rent | Buy |
| Asking Price | Price on Request |
| Land Size Total | 13'400 m2 |
| Electricity Extra Power | On Demand |
| Electricity Note | 300 kva |
| Min Height | 6 m |
| Max Height | 0 m |
| Divisible | No |
| Expansion possible | No |
| No of Office Rooms | |
| Office Area | 1114m2 |
| No of Parking Slots | 68 |
| No of Docks | 2 |
| No of Ramps | 1 |
| Water available | Yes |
| Water Note | |
| Docks Levelers |
..
| Video Monitoring Inside Nave | On Demand |
|---|---|
| Security Fence | Yes |
| Video Monitoring Park | On Demand |
| Security | |
| Sanitary rooms | |
| Social Rooms | |
| Fire Protection | Yes |
| Building Type | |
| Quality Walls | |
| Quality Roof | |
| Quality Floor | |
| Asset Updated | 22/05/2025 |
| Distance to Airport | |
| Distance to US Border | 20 |
| Air Condition | On Demand |
| Ventilation System | |
| Certifications | |
| Permission Government | Yes |
Note:Those info are without guarantee and can vary.
Facts About Tamaulipas
3.6 M Population
1.6 M Active working population
15,000 Graduates per year
$700 USD Average Salary
39 Industrial Parks400km Distance to US-Border
Manufacturing in Tamaulipas
The City
Tamaulipas, located in northeastern Mexico, is a state known for its diverse landscapes, rich cultural heritage, and economic significance. With a total of 43 municipalities, Tamaulipas is home to approximately 3.5 million inhabitants.
Strategic Location
Tamaulipas occupies a strategic location in northeastern Mexico, bordering the United States to the north and the Gulf of Mexico to the east. This geographical position positions the state as a crucial gateway for trade and commerce between Mexico and the United States, facilitating the movement of goods, services, and people across borders. Additionally, Tamaulipas' access to major transportation routes, including highways, railways, and seaports, enhances its significance as a logistical hub for international trade. The state's strategic location offers opportunities for economic growth, investment, and collaboration, making it a key player in the regional and global economy.
Industries
Tamaulipas boasts a diverse economy supported by several thriving industries. The state's oil and gas sector is particularly prominent, with Tamaulipas being home to significant oil reserves and petroleum refineries. Additionally, manufacturing plays a key role in the state's economy, with industries such as automotive, electronics, and aerospace contributing to its growth and development. Agriculture is another important industry, with Tamaulipas producing a variety of crops including sorghum, citrus fruits, and vegetables. The state's coastal location also supports a thriving fishing industry, while tourism is emerging as a promising sector, thanks to Tamaulipas' natural attractions and cultural heritage.
Workforce & Universities
Tamaulipas benefits from a skilled and educated workforce supported by a network of universities and educational institutions. The state is home to several prestigious universities, including the Autonomous University of Tamaulipas (UAT) and the Instituto Tecnológico de Ciudad Victoria (ITCV), offering a wide range of programs in fields such as engineering, business, and healthcare. These institutions provide the state with a steady supply of qualified professionals, contributing to its economic growth and development











