Industrial Land/Build-to-Suit for Sale, 1 - 60 hectares, in Contepec, Michoacan MEX1528
About the asset
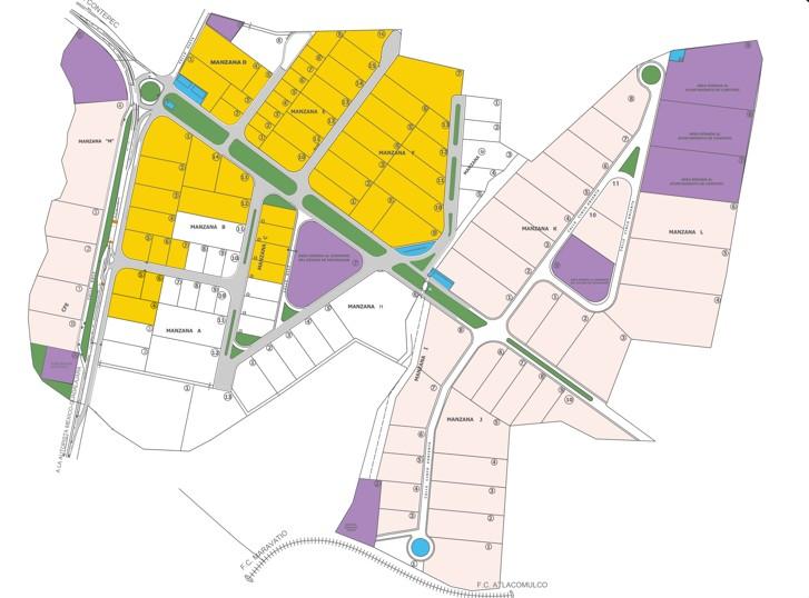
Parque Industrial Contepec – Fact Sheet Summary Parque Industrial Contepec is an industrial development with a total available surface of 590,890.13 m². The park is partially developed and offers serviced as well as non-serviced industrial land. Land Availability Total plots: 123 Sold plots: 50 Donated plots: 9 Available plots: 64 Development Phases Phase 1 (Fully developed): 22 available plots 30 hectares Fully serviced and infrastructure completed Phase 2 (Undeveloped): 32 availab...Read MoreMore Details
| Square Meter | 10'000 m2 |
|---|---|
| Buy or rent | Buy |
| Asking Price | on request |
| Land Size Total | 600'000 m2 |
| Ready to operate | immediately |
| Electricity Extra Power | On Demand |
| Electricity Note | 1200 kva |
| Max Height | 0 m |
| Divisible | Yes |
| Expansion possible | Yes |
| No of Office Rooms | 0 |
| Office Area | |
| No of Parking Slots | 0 |
| No of Docks | 0 |
| No of Ramps | 0 |
| Water available | Yes |
| Water Note | |
| Docks Levelers |
..
| Video Monitoring Inside Nave | No |
|---|---|
| Security Fence | Yes |
| Video Monitoring Park | On Demand |
| Security | |
| Sanitary rooms | 0 |
| Social Rooms | 0 |
| Fire Protection | No |
| Building Type | |
| Quality Walls | |
| Quality Roof | |
| Quality Floor | |
| Asset Updated | 09/12/2025 |
| Distance to Airport | 0 |
| Distance to US Border | 800 |
| Air Condition | On Demand |
| Ventilation System | |
| Certifications | |
| Permission Government | Yes |
Note:Those info are without guarantee and can vary.
Facts About Michoacan
4.7 Million Habitants
2.2 M Active working population
1.100km Distance to US-Border
$520 USD Average Monthly salary
Manufacturing in San Luis Potosí
The City
San Luis Potosi have nearly 3 million habitants and it ranks 5th place in Great American Cities with Eocnomic Potential of the future. It has access to nearly 78 million consumers and 78% of GDP, within a radius of 500km.
Strategic Location
It is very central located, with only 2 hours to Aguascalientes, 4 driving hours to Monterrey, and 7 hours to the U.S. Border
Industries & Economy
Automotive, Home Appliances, Metal Industries as well as Food Industry are strongest Economy of San Luis Potosi. The city is part of the geographical area where the automotive sector has the most important production in the country. The city has over 18 parks and industrial zones.
Workforce & Universities
San Luis Potosi has 125 higher education institutions, 16 R+D Centers, and 6 National Laboratories. It promotes strongly its talents, with nearly 100'000 Undergraduate and Postgraduate Students and more than 6'000 engineers graduated annually.



